Мультирум и домашний кинотеатр
В эпоху цифровых технологий и стремительного развития мультимедийных возможностей, качество домашних развлечений играет всё более значимую роль в нашей жизни. Дом уже давно перестал быть просто местом для отдыха; он превращается в многофункциональное пространство, где каждый уголок способен доставлять эстетическое удовольствие и комфорт. Особое внимание уделяется системам мультирума и домашнего кинотеатра, которые являются не просто трендом, но и необходимостью для ценителей качественного звука и изображения.
Система мультирума позволяет наслаждаться любимой музыкой в любой точке дома. Это решение объединяет акустические системы разных комнат в единую сеть, позволяя управлять воспроизведением музыки централизованно или индивидуально в каждой зоне. Вы можете начать слушать любимый альбом в гостиной, а затем, переместившись на кухню, продолжить прослушивание без прерывания.
Домашний кинотеатр же переносит волшебство кинематографа прямо в ваш дом. От качества звука и изображения до комфорта зрительских мест – каждый элемент тщательно продуман, чтобы предоставить вам максимально погружающий и реалистичный опыт просмотра фильмов и телешоу.
Эта статья предназначена для того, чтобы помочь вам разобраться во всех тонкостях этих систем. Мы рассмотрим различные варианты их реализации, обсудим технические аспекты и дадим советы по выбору и установке оборудования. Вы узнаете, какие возможности открывает перед вами каждая из систем, и как их интеграция может преобразить ваш дом в современный центр мультимедийных развлечений, где каждая комната оживает благодаря высококачественному звуку и изображению.
Основные понятия
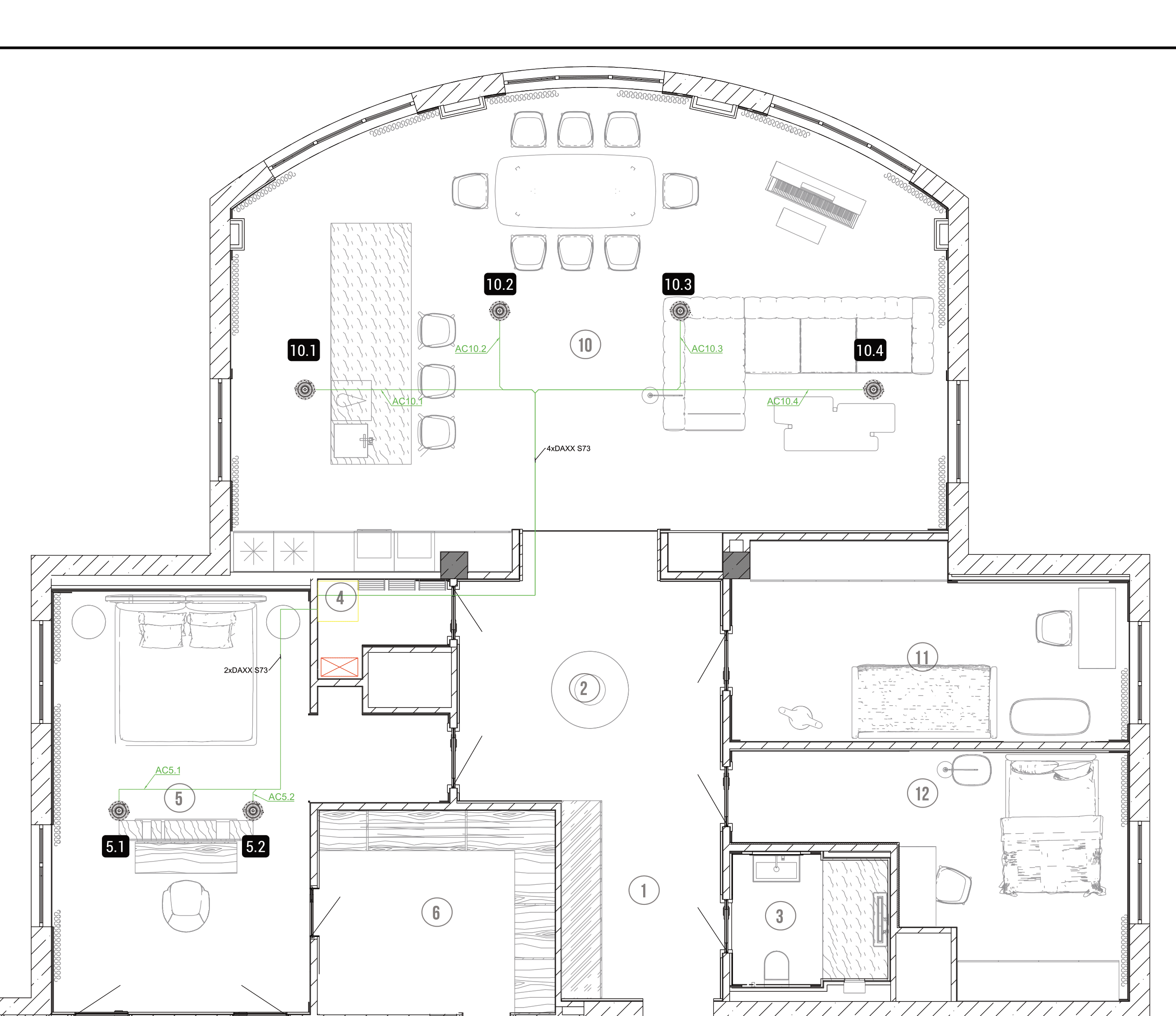
Мультирум
Это передовая аудиосистема, предназначенная для воспроизведения музыки в нескольких комнатах или зонах дома. Основная особенность мультирума заключается в его гибкости: вы можете слушать одну и ту же мелодию во всех комнатах или выбирать разные треки для каждой комнаты независимо. Это достигается благодаря централизованной системе управления, которая может быть интегрирована с вашими мобильными устройствами или умным домом.
Системы мультирума бывают как проводные, так и беспроводные, предлагая различные варианты установки в зависимости от потребностей и конфигурации вашего дома. Беспроводные системы особенно популярны из-за их удобства установки и способности вписываться в любой интерьер без необходимости прокладывания кабелей.
Домашний Кинотеатр
Это сочетание аудио и видео оборудования, созданное для того, чтобы обеспечить максимально реалистичный и погружающий опыт просмотра фильмов и телешоу. В основе домашнего кинотеатра лежит высококачественная акустическая система, включающая в себя многоканальный звук (например, 5.1, 7.1 или даже Dolby Atmos), и большой экран или проектор, способные воспроизводить изображение в высоком разрешении.
Ключевым моментом в создании домашнего кинотеатра является правильное размещение акустических систем и экрана, а также обеспечение адекватной звукоизоляции и акустической обработки помещения. Это гарантирует, что звук будет распространяться равномерно, а изображение на экране будет четким и ярким, давая зрителю ощущение полного погружения в происходящее на экране.
Таким образом, мультирум и домашний кинотеатр — это два разных, но взаимодополняющих способа улучшения вашего домашнего развлекательного опыта. Мультирум обеспечивает гибкость и разнообразие музыкального сопровождения по всему дому, в то время как домашний кинотеатр предлагает непревзойденное качество звука и изображения для фильмов и телепередач, создавая неповторимую атмосферу кинозала прямо у вас дома.
Разделение на категории
Мультирум: от базового до премиального
Базовый
- Качество звука: обычно используют бюджетные аудиосистемы или беспроводные динамики с базовым качеством звука.
- Функционал: включает в себя простое управление воспроизведением музыки, часто через стандартные приложения на смартфонах или планшетах.
- Примеры оборудования: беспроводные динамики, компактные звуковые системы.
Средний
- Качество звука: Лучшее качество звука с использованием качественных аудиокомпонентов и улучшенной акустической обработки помещений.
- Функционал: Возможности мультизонного воспроизведения, интеграция с умным домом и расширенные настройки управления.
- Примеры оборудования: Многофункциональные аудиосистемы, умные колонки с интеграцией голосовых помощников.
Премиальный
- Качество звука: Высочайшее качество с использованием топовых аудиосистем, профессиональных компонентов и индивидуальной акустической настройки каждой комнаты.
- Функционал: Полная интеграция с системами умного дома, сложные сценарии воспроизведения, высокая гибкость и персонализация.
- Примеры оборудования: Высококлассные аудиосистемы, индивидуально настраиваемые мультизонные аудиорешения.

Домашние кинотеатры: от компактных до интегрированных
Стандартный
- Размер экрана: обычно включает в себя телевизор с диагональю от 40 до 65 дюймов.
- Мощность звуковой системы: звуковые панели или базовые домашние кинотеатры 5.1.
- Интеграция с интерьером: минимальная или отсутствует; оборудование часто вписывается в существующий интерьер.
Расширенный
- Размер экрана: большие телевизоры или проекторы с диагональю экрана от 65 дюймов.
- Мощность звуковой системы: многоканальные системы звука (например, 7.1 или Dolby Atmos).
- Интеграция с интерьером: частичная интеграция, включая специальные кресла для кинотеатров, акустическую обработку.
Премиальный
- Размер экрана: высококачественные проекторы с очень большими экранами или передовые телевизоры с технологией OLED/4K/8K.
- Мощность звуковой системы: профессиональные аудиосистемы с полной калибровкой и индивидуальной настройкой.
- Интеграция с интерьером: полная интеграция и персонализация, включая специальное оборудование для кинотеатров, акустическую изоляцию и специализированное освещение.

Эти категории помогают определить подходящий уровень инвестиций и функциональности в зависимости от ваших предпочтений, бюджета и требований к качеству звука и изображения.
Технические аспекты
Оборудование для мультирума
Беспроводные колонки
- Особенности: Портативность, простота установки, возможность легкой интеграции в домашнюю Wi-Fi сеть.
- Важные характеристики: Качество звучания, диапазон частот, время автономной работы (для аккумуляторных моделей), совместимость с различными музыкальными сервисами и устройствами.
- Применение: Идеально подходят для быстрого создания музыкальной атмосферы в различных комнатах без необходимости проводной прокладки.
Центральный сервер для управления музыкой
- Особенности: Сервер является «мозгом» системы мультирума, обеспечивая централизованное хранение и управление музыкальным контентом.
- Важные характеристики: Емкость хранения, скорость обработки данных, совместимость с разными форматами аудио, поддержка мультизонного воспроизведения.
- Применение: Позволяет хранить большой объем музыкальных коллекций в одном месте и управлять воспроизведением музыки в разных комнатах.
Оборудование для домашнего кинотеатра
Проекторы
- Особенности: Предоставляют большую диагональ изображения, возможность создания кинотеатрального опыта.
- Важные характеристики: Разрешение (Full HD, 4K), яркость, контрастность, входы подключения, возможность коррекции изображения.
- Применение: Идеален для создания большого изображения в специально оборудованных помещениях.
Большие экраны
- Особенности: Высококачественное изображение, простота использования, не требуют темного помещения.
- Важные характеристики: Диагональ экрана, разрешение, тип панели (LED, OLED), углы обзора, поддержка HDR.
- Применение: Подходят для ежедневного просмотра фильмов и телепередач в гостиных.
Мощная акустическая система
- Особенности: Обеспечивает объемное и качественное звучание, создавая эффект присутствия в кинозале.
- Важные характеристики: Количество каналов (5.1, 7.1, Dolby Atmos), мощность, диапазон воспроизводимых частот, чувствительность.
- Применение: Необходима для полноценного погружения в атмосферу фильма, особенно важна для блокбастеров и фильмов с богатым звуковым сопровождением.
Выбор подходящего оборудования является ключевым моментом в создании как мультирума, так и домашнего кинотеатра. Необходимо тщательно подходить к выбору каждого компонента, учитывая как технические характеристики, так и ваши индивидуальные потребности и особенности помещения. Это гарантирует, что ваша система будет не только функциональной, но и гармонично вписываться в общий интерьер дома, обеспечивая максимальный комфорт и удовольствие от использования.

Интеграция систем: мультирум и домашний кинотеатр
Интеграция мультирума и домашнего кинотеатра в единую систему предполагает создание централизованной мультимедийной сети в доме. Это означает, что все устройства — от колонок и экранов до усилителей и медиасерверов — могут взаимодействовать друг с другом и управляться централизованно.
Централизованное управление
- Все компоненты системы подключаются к центральному управляющему устройству, которое может быть частью умного дома или отдельным медиасервером.
- Управление происходит через специальные приложения на смартфонах, планшетах или через голосовые ассистенты, что обеспечивает легкость и удобство в использовании.
Сетевые возможности
- Интеграция предполагает подключение всех элементов к домашней сети Wi-Fi или через Ethernet для обеспечения стабильного взаимодействия.
- Это позволяет стримить контент из различных источников, включая онлайн-сервисы, NAS-серверы или даже с мобильных устройств.
Интеграция аудиосистемы

Мультизонный звук
- Система мультирума позволяет воспроизводить разную или одинаковую музыку в разных комнатах, включая зону домашнего кинотеатра.
- Это позволяет создать уникальную атмосферу в каждой комнате и управлять всеми звуковыми зонами централизованно.
Совместная работа с домашним кинотеатром
При просмотре фильмов система мультирума может автоматически отключаться в определенных зонах или наоборот, включать фоновую музыку в других комнатах.
Интеграция видеосистемы
Распределение видео
Интеграция позволяет транслировать видеоконтент из одного источника (например, медиаплеера или онлайн-сервиса) на несколько экранов в доме, включая экран домашнего кинотеатра.Это идеально подходит для просмотра фильмов, телепередач или спортивных событий в разных комнатах одновременно.
Универсальный контроль
Интеграция обеспечивает возможность управления всеми видеоисточниками и экранами с одного устройства управления, что упрощает переключение между различными режимами просмотра.
Преимущества Интеграции
- Гибкость: Пользователи могут настроить систему под свои нужды, выбирая, какой контент и где воспроизводить.
- Удобство управления: Все устройства контролируются из одного интерфейса, что делает управление системой интуитивно понятным.
- Экономия пространства: Интеграция позволяет избежать необходимости в установке множества разных устройств в каждой комнате.
Интеграция мультирума и домашнего кинотеатра в единую систему — это не только удобно, но и технологично. Она открывает новые возможности для создания мультимедийного пространства, где каждая комната дома становится частью единого развлекательного комплекса.
Реализация проекта: создание мультирума и домашнего кинотеатра
Определение требований
Прежде всего, важно четко определить, что вы хотите получить от системы мультирума и домашнего кинотеатра. Рассмотрите такие вопросы, как количество комнат для включения в мультирум, размер и особенности помещения для домашнего кинотеатра, желаемые функции и бюджет.
Выбор оборудования
Исходя из ваших требований, подберите подходящие аудио-видео компоненты. Для мультирума это могут быть беспроводные колонки, усилители, медиасерверы, а для домашнего кинотеатра — проектор или большой экран, акустическая система, AV-ресиверы.
Совместимость компонентов
Убедитесь, что все выбранные компоненты совместимы друг с другом и поддерживают необходимые стандарты связи и форматы файлов.
Расстановка оборудования и акустика
Расстановка акустической системы
Правильная расстановка акустической системы критически важна для качества звука. Рассмотрите расположение колонок исходя из акустики помещения. Например, в домашнем кинотеатре колонки должны располагаться таким образом, чтобы звук распределялся равномерно и создавал объемный эффект.
Акустическая обработка
В некоторых случаях может потребоваться акустическая обработка помещения, включая установку звукопоглощающих панелей или бас-ловушек для улучшения качества звука.
Эстетическая сторона
Интеграция с интерьером
Оборудование должно гармонично вписываться в интерьер. Это может включать в себя выбор оборудования с дизайном, соответствующим стилю комнаты, или скрытую установку некоторых компонентов.
Кабельный менеджмент
Правильное управление кабелями и их скрытая прокладка помогут сохранить аккуратный вид комнаты.
Привлечение профессионалов
Рекомендуется привлекать профессионалов для установки и настройки системы, особенно при работе с сложными компонентами и требующими специфических знаний, таких как акустическая обработка помещения и калибровка аудио-видео оборудования.
Техническая поддержка
Профессионалы могут также предоставить техническую поддержку и советы по использованию системы, что особенно важно для максимального раскрытия потенциала сложных мультирум систем и домашних кинотеатров.
Реализация проекта мультирума и домашнего кинотеатра требует тщательного планирования и внимания к деталям. Правильный выбор и расстановка оборудования, учет акустики помещения и эстетической стороны, а также профессиональная установка и настройка являются ключевыми факторами успешного создания идеального домашнего мультимедийного пространства.
Примеры реализации с ценами
| Мультирум 1 зона с сабвуфером Вариант с сабвуфером. Установка в жилых комнатах Схема с одноканальным усилителем. Лучше применять ее, посколько в одноканальном есть дополнительный выход под сабвуфер. Если подключается сабвуфер, то усилитель размещается прямо в комнате. |
|||||||
| № | Оборудование | Кол-во | Цена у.е. | Цена руб. | Итого | Ссылка | Пояснение |
| 1 | Мультимедийный усилитель AirPlay2 (1 канал) VSSL A1 | 1 шт | 995$ | ₽88 058 | 88 058₽ | Ссылка | Усилитель для колонок |
| 2 | Потолочные колонки Sonance VP66R (цена за пару) | 1 шт | 1 313$ | ₽116 201 | 116 201₽ | Ссылка | |
| 3 | Сабвуфер Bowers & Wilkins ASW610 | 1 шт | 899$ | ₽79 562 | 79 562₽ | Ссылка | Сабвуфер |
| 4 | Короб для акустики 2 шт. MEDIUM ROUND ACOUSTIC ENCLOSURE | 2 шт | ₽13 860 | 27 720₽ | Ссылка | Короба под колонки (жесткие короба, закладываются заранее) | |
| 5 | DAXX S702-S703 Акустический кабель профессиональный, витой, круглый, гибкий. Public Address | 630 руб/метр | Ссылка | Кабель на колонки | |||
| 6 | W86 Сабвуферный аудио кабель с медными жилами 2х0,75мм2. D=9мм |
от 3500 до 11000 руб.
|
Ссылка | Кабель на сабвуфер от 1 до 15 метров | |||
| Итого, без учета кабеля | 311 540₽ | ||||||

| Мультирум 1 зона без сабвуфера Вариант без сабвуфера. Установка в жилых комнатах Схема с одноканальным усилителем. |
|||||||
| № | Оборудование | Кол-во | Цена у.е. | Цена руб. | Итого | Ссылка | Пояснение |
| 1 | Мультимедийный усилитель AirPlay2 (1 канал) VSSL A1 | 1 шт | 1 314$ | ₽116 289 | 116 289₽ | Ссылка | Усилитель для колонок |
| 2 | Потолочные колонки Sonance VP66R (цена за пару) | 1 шт | 1 313$ | ₽116 201 | 116 201₽ | Ссылка | Колонки круглые (бывают прямоугольные) |
| 4 | Короб для акустики 2 шт. MEDIUM ROUND ACOUSTIC ENCLOSURE | 2 шт | ₽13 860 | 27 720₽ | Ссылка | Короба под колонки (жесткие короба, закладываются заранее) | |
| 5 | DAXX S702-S703 Акустический кабель профессиональный, витой, круглый, гибкий. Public Address | 630 руб/метр | Ссылка | Кабель на колонки | |||
| Итого, без учета кабеля | 260 210₽ | ||||||
| Мультирум 2 зоны без сабвуфера Вариант без сабвуфера. Установка в жилых комнатах Схема с многоканальным усилителем. Важно! У многоканального усилителя нет выхода на сабвуфер |
|||||||
| № | Оборудование | Кол-во | Цена у.е. | Цена руб. | Итого | Ссылка | Пояснение |
| 1 | Мультимедийный усилитель AirPlay2 (3 канала) VSSL A3 | 1 шт | 3 775$ | ₽334 088 | 334 088₽ | Ссылка | Усилитель для колонок |
| 2 | Потолочные колонки Sonance VP66R (цена за пару) | 2 шт | 1 313$ | ₽116 201 | 232 401₽ | Ссылка | Колонки круглые (бывают прямоугольные) |
| 4 | Короб для акустики 2 шт. MEDIUM ROUND ACOUSTIC ENCLOSURE | 4 шт | ₽13 860 | 55 440₽ | Ссылка | Короба под колонки (жесткие короба, закладываются заранее) | |
| 5 | DAXX S702-S703 Акустический кабель профессиональный, витой, круглый, гибкий. Public Address | 630 руб/метр | Ссылка | Кабель на колонки | |||
| Итого, без учета кабеля | 621 929₽ | ||||||
| Мультирум 3 зоны без сабвуфера Вариант без сабвуфера. Установка в жилых комнатах Схема с многоканальным усилителем. Важно! У многоканального усилителя нет выхода на сабвуфер |
|||||||
| № | Оборудование | Кол-во | Цена у.е. | Цена руб. | Итого | Ссылка | Пояснение |
| 1 | Мультимедийный усилитель AirPlay2 (3 канала) VSSL A3 | 1 шт | 3 775$ | ₽334 088 | 334 088₽ | Ссылка | Усилитель для колонок |
| 2 | Потолочные колонки Sonance VP66R (цена за пару) | 3 шт | 1 313$ | ₽116 201 | 348 602₽ | Ссылка | Колонки круглые (бывают прямоугольные) |
| 4 | Короб для акустики 2 шт. MEDIUM ROUND ACOUSTIC ENCLOSURE | 6 шт | ₽13 860 | 83 160₽ | Ссылка | Короба под колонки (жесткие короба, закладываются заранее) | |
| 5 | DAXX S702-S703 Акустический кабель профессиональный, витой, круглый, гибкий. Public Address | 630 руб/метр | Ссылка | Кабель на колонки | |||
| Итого, без учета кабеля | 765 849₽ | ||||||
| Мультирум 4 зоны без сабвуфера Вариант без сабвуфера. Установка в жилых комнатах Схема с многоканальным усилителем. Важно! У многоканального усилителя нет выхода на сабвуфер |
|||||||
| № | Оборудование | Кол-во | Цена у.е. | Цена руб. | Итого | Ссылка | Пояснение |
| 1 | Мультимедийный усилитель AirPlay2 (6 каналов) VSSL A6 | 1 шт | 7 061$ | ₽624 899 | 624 899₽ | Ссылка | Усилитель для колонок |
| 2 | Потолочные колонки Sonance VP66R (цена за пару) | 4 шт | 1 313$ | ₽116 201 | 464 802₽ | Ссылка | Колонки круглые (бывают прямоугольные) |
| 4 | Короб для акустики 2 шт. MEDIUM ROUND ACOUSTIC ENCLOSURE | 8 шт | ₽13 860 | 110 880₽ | Ссылка | Короба под колонки (жесткие короба, закладываются заранее) | |
| 5 | DAXX S702-S703 Акустический кабель профессиональный, витой, круглый, гибкий. Public Address | 630 руб/метр | Ссылка | Кабель на колонки | |||
| Итого, без учета кабеля | 1 200 581₽ | ||||||
| Мультирум 5 зон без сабвуфера Вариант без сабвуфера. Установка в жилых комнатах Схема с многоканальным усилителем. Важно! У многоканального усилителя нет выхода на сабвуфер |
|||||||
| № | Оборудование | Кол-во | Цена у.е. | Цена руб. | Итого | Ссылка | Пояснение |
| 1 | Мультимедийный усилитель AirPlay2 (6 каналов) VSSL A6 | 1 шт | 7 061$ | ₽624 899 | 624 899₽ | Ссылка | Усилитель для колонок |
| 2 | Потолочные колонки Sonance VP66R (цена за пару) | 5 шт | 1 313$ | ₽116 201 | 581 003₽ | Ссылка | Колонки круглые (бывают прямоугольные) |
| 4 | Короб для акустики 2 шт. MEDIUM ROUND ACOUSTIC ENCLOSURE | 10 шт | ₽13 860 | 138 600₽ | Ссылка | Короба под колонки (жесткие короба, закладываются заранее) | |
| 5 | DAXX S702-S703 Акустический кабель профессиональный, витой, круглый, гибкий. Public Address | 630 руб/метр | Ссылка | Кабель на колонки | |||
| Итого, без учета кабеля | 1 344 501₽ | ||||||
| Мультирум 6 зон без сабвуфера Вариант без сабвуфера. Установка в жилых комнатах Схема с многоканальным усилителем. Важно! У многоканального усилителя нет выхода на сабвуфер |
|||||||
| № | Оборудование | Кол-во | Цена у.е. | Цена руб. | Итого | Ссылка | Пояснение |
| 1 | Мультимедийный усилитель AirPlay2 (6 каналов) VSSL A6 | 1 шт | 7 061$ | ₽624 899 | 624 899₽ | Ссылка | Усилитель для колонок |
| 2 | Потолочные колонки Sonance VP66R (цена за пару) | 6 шт | 1 313$ | ₽116 201 | 697 203₽ | Ссылка | Колонки круглые (бывают прямоугольные) |
| 4 | Короб для акустики 2 шт. MEDIUM ROUND ACOUSTIC ENCLOSURE | 12 шт | ₽13 860 | 166 320₽ | Ссылка | Короба под колонки (жесткие короба, закладываются заранее) | |
| 5 | DAXX S702-S703 Акустический кабель профессиональный, витой, круглый, гибкий. Public Address | 630 руб/метр | Ссылка | Кабель на колонки | |||
| Итого, без учета кабеля | 1 488 422₽ | ||||||
Тенденции и будущее мультирума и домашних кинотеатров
Сфера домашних развлечений продолжает стремительно развиваться, предлагая всё более продвинутые технологии и возможности.
Интеграция с Умным домом
- По мере развития технологий умного дома, системы мультирума и домашних кинотеатров всё более интегрируются с другими умными устройствами. Это включает в себя управление освещением, температурой, безопасностью и даже бытовыми приборами в зависимости от вашего взаимодействия с медиасистемой.
- Автоматизированные сценарии, например, включение определенной музыки при возвращении домой или автоматическое затемнение света при начале фильма, станут нормой.
Развитие искусственного интеллекта
- ИИ будет играть ключевую роль в управлении мультимедийными системами, предлагая персонализированные рекомендации по контенту на основе ваших предпочтений и прослушиваемой музыки или просмотренных фильмов.
- Системы смогут адаптироваться к вашему настроению и предпочтениям, автоматически подбирая музыку и видеоконтент.
Усовершенствованные аудио-видео технологии
- Развитие технологий приведет к созданию еще более мощных и качественных аудио-видео систем, с лучшей картиной и звуком.
- Внедрение новых форматов аудио и видео, таких как 8K и 3D-звук, обеспечит еще более реалистичный и погружающий опыт.
Заключение
Трансформация домашнего досуга
Внедрение систем мультирума и домашнего кинотеатра преобразует обыденный домашний досуг в настоящее мультимедийное погружение. Эти системы значительно повышают качество жизни, предлагая разнообразные и увлекательные способы развлечения прямо у вас дома.
Персонализированный опыт
- Каждый член семьи может наслаждаться своими любимыми музыкальными треками или фильмами в любой комнате дома, создавая персонализированный аудиовизуальный опыт.
- Мультирум дает возможность управлять музыкой в разных зонах дома независимо, в то время как домашний кинотеатр создает непревзойденное качество просмотра фильмов.
Улучшение качества жизни
- Высококачественное аудио и визуальное оборудование обеспечивает глубокое погружение в мир музыки и кино, улучшая общее впечатление от просмотра и прослушивания.
- Эти системы создают атмосферу, которая может повысить эмоциональный отклик и вовлеченность в просматриваемый контент.
Взаимодействие и развлечения
- Домашний кинотеатр становится идеальным местом для семейных вечеров и встреч с друзьями, обеспечивая общий опыт просмотра фильмов и спортивных мероприятий.
- Мультирум позволяет организовать музыкальные вечера или создать расслабляющую атмосферу во время семейных собраний.
Важность правильного выбора и установки
Профессиональный подход
- Правильный выбор и качественная установка оборудования — ключ к достижению наилучших результатов. Рекомендуется обращаться к профессионалам для настройки и калибровки системы, чтобы обеспечить оптимальное качество звука и изображения.
- Профессиональная установка также помогает интегрировать новую систему с существующими технологиями умного дома и автоматизировать управление медиа.
Долгосрочные преимущества
- Вложение в качественные мультирум и домашние кинотеатральные системы не только улучшает текущий досуг, но и является долгосрочной инвестицией в комфорт и развлечения дома.
- С течением времени, такие системы могут адаптироваться к изменяющимся технологическим трендам и потребностям пользователя.
Итак, мультирум и домашний кинотеатр не просто технологические улучшения для дома, они являются важным шагом к повышению качества домашнего досуга и социального взаимодействия. Правильный выбор, качественная установка и интеграция этих систем обеспечат вам и вашей семье незабываемые впечатления от любимых фильмов и музыки, превращая каждый день в дома в особенное событие.